Dir: 647-505-9207

Call us @ any time

282 RIDGE Street, Saugeen Shores, ON N0H 2C3 (Ridge Street West Side between Frances & Ivings)

Price : $999,900.00 , MLS®# : X11822711

Thanesh Sivaganasundram
Real Estate Agent
Description

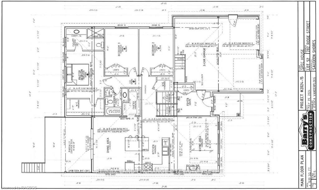
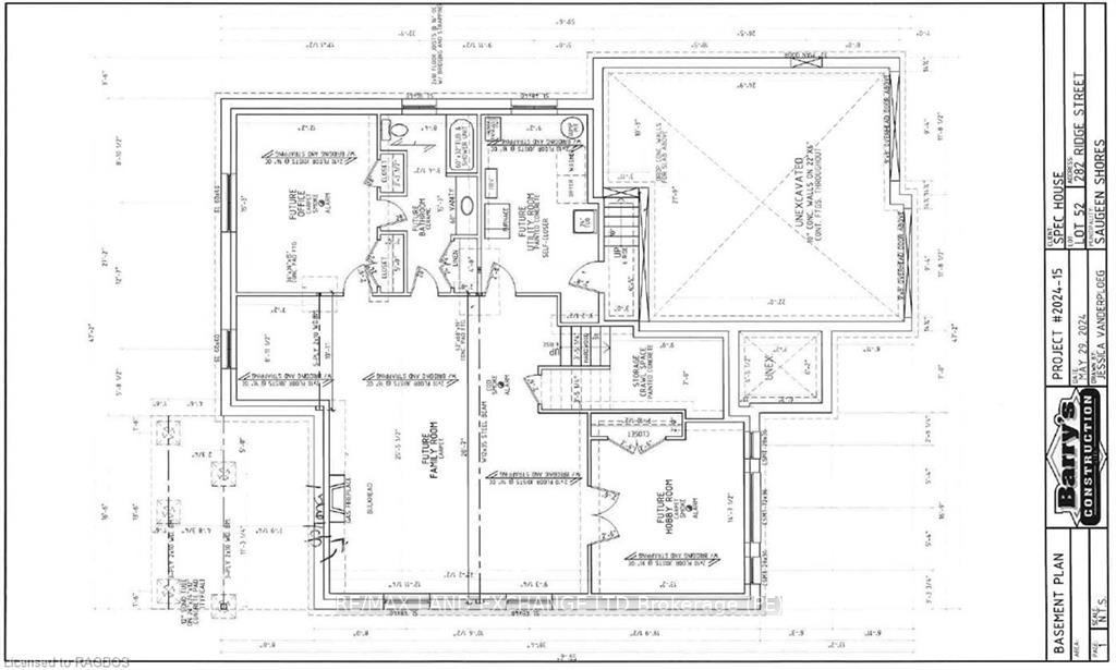
The framing is complete at 282 Ridge Street, Port Elgin for this 1639 sqft home with 3 bedrooms and 2 full baths on the main floor; featuring hardwood and ceramic flooring, walk-in kitchen pantry, tiled shower in the ensuite bath, partially covered rear deck 14 x 16'8, 9 foot ceilings and more. The basement has a separate entrance from the 2 car garage and features a large family room, 2 more bedrooms and full bath. Additional features included sodded yard, concrete drive, gas fireplace, central air, and interior colour selections for those that act early. HST is included in the asking price provided the Buyer qualifies for the rebate and assigns it to the Builder on closing. Prices subject to change without notice.

Location Description

Ridge Street West Side between Frances & Ivings

Property Details
  • Community: Saugeen Shores
  • Property Type: Vacant/Residential Freehold
  • Bedrooms: 5
  • Bath: 3
  • Garages: Attached
  • Annual Property Taxes : $ 0
Building Features
  • Foundation Type: Poured Concrete
  • Counstruction Material : Stone-Vinyl Siding
  • Total Parking Space : 4
  • Parking Type : Attached
Features
  • Heating : Forced AirGas
  • Sewer : Sewer ,

Listing Contracted With: RE/MAX Land Exchange Ltd.