Dir: 647-505-9207

Call us @ any time

461 NORTHPORT Drive, Saugeen Shores, ON N0H 2C8 (Bruce Street North turn right on Northport Drive to sign on left 461 Northport Drive (Lot 13))

Price : $999,900.00 , MLS®# : X11822708

Thanesh Sivaganasundram
Real Estate Agent
Description

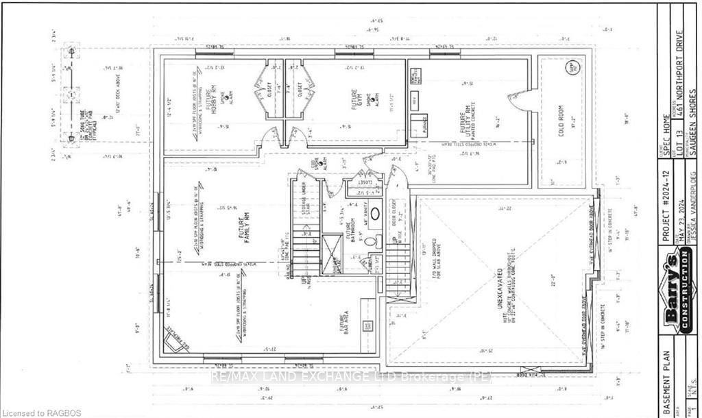
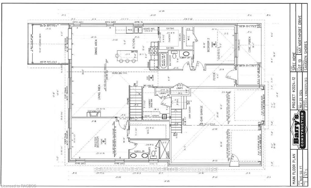
Drywall and paint are complete and this bungalow could be your new home at 461 Northport Drive in Port Elgin in just 60 days. One of the Builder's most popular plans; could it be the 6'8 x 6'8 walk in pantry, large finished basement, covered front porch, vaulted ceiling in the LR / DR & Kitchen or covered back deck that make it a best seller. The main floor boasts 1605 sqft of living space and the basement is accessible from the 2 car garage that measures 25'8 x 21'10. Standard features include Quartz kitchen counter tops, gas fireplace, central air, main floor laundry with cabinets for added storage, automatic garage door openers, double concrete drive, sodded yard and more. HST is included in the list price provided the Buyer qualifies for the rebate and assigns it to the Builder on closing.

Location Description

Bruce Street North turn right on Northport Drive to sign on left 461 Northport Drive (Lot 13)

Property Details
  • Community: Saugeen Shores
  • Property Type: Vacant/Residential Freehold
  • Bedrooms: 4
  • Bath: 3
  • Garages: Attached
  • Annual Property Taxes : $ 0
Building Features
  • Foundation Type: Poured Concrete
  • Counstruction Material : Stone-Vinyl Siding
  • Total Parking Space : 4
  • Parking Type : Attached
Features
  • Heating : Forced AirGas
  • Sewer : Sewer ,

Listing Contracted With: RE/MAX Land Exchange Ltd.